Planning applications 1951-2017:
Alterations to 18 Holmes Road, 1951:

Site of Holmes Road Depot, Road Haulage Executive, South Eastern Division, office and restroom, 1952:

Sign at 1 Holmes Road, 1953:

Workshop at rear of 22 Holmes Road, 1957:

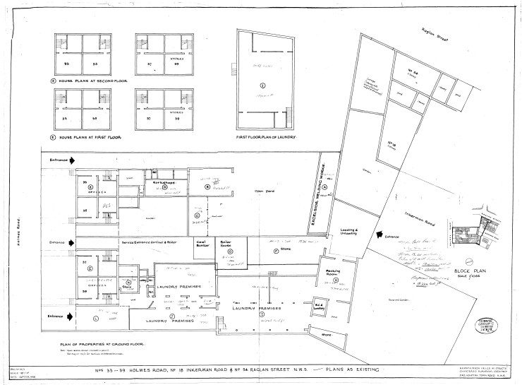
Laundry at 33-39 Holmes Road, 1958:

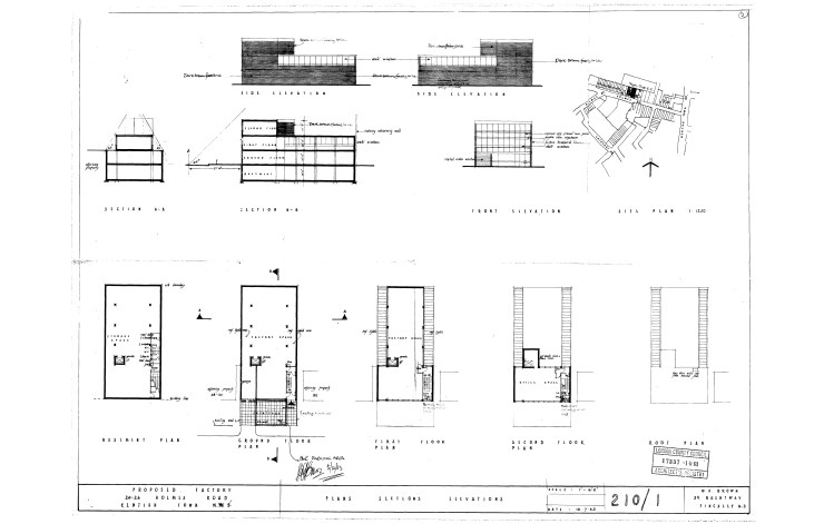
Factory at 28-30 Holmes Road, 1959:

OS 1962:

Umbrella factory at 24-26, 1963:

British Road Services, 1967:

Additional windows to 28-30 Holmes Road, 1968:

Storehouse at 55-57 Holmes Road, 1973:

Factory at 32-24, 1976:

Alterations to 55-57, 1977:

Alterations to Police Station, 1980:

Police Station gate, 1981:

Workshop and depot at 54-74, 1989:

Alterations to Holmes Road Depot, 1994:

Alterations and refurbishment of Holmes Road Depot, 2017:
