The police station in Holmes Road is listed Grade 2. It was designed by Richard Norman Shaw and completed in 1896.

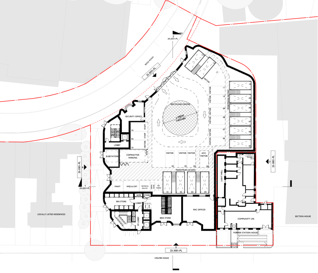
The building is now proposed to be radically altered and diminished by two planning applications. Yoo Capital’s application (ref. 2025/4861/P) sees most of the police station demolished, including all of its extensions and part of the original building at the rear. It is then to be encased on west and north sides by a massive structure: the new recycling centre and social housing block.



The Listed Building Consent application (ref. 2025/5084/L) for the alterations to the listed police station is inadequate. The documentation does not provide sufficient information about the original fabric remaining and how this can be protected and enhanced.
See the Statement of Significance and the Heritage Assessment.
Yoo’s scheme also takes away the London Met car park, so on the the east side of the listed building a the new parking structure necessary. This is planning application ref. 2025/5479/P.

The parking structure will blight the existing police station with fumes and noise outside the windows of the listed building on its east side. This building is earmarked for community use, but in order to for it to be useable it will have to be mechanically ventilated and its windows sealed, resulting in even more damage to the listed building.

It will take around 3 years for the alterations to the Section House to be granted permission, designed and built and for the police to move into.
The programme put forward by Yoo Capital for the building of the new recycling centre is predicated on the police moving out of Kentish Town Police Station before their new home is ready. This will leave Kentish Town without a locally based police presence, with a risk of losing this service altogether.