A brochure came through the letter boxes of local residents:-
“YOUR NEW QUEEN’S CRESCENT AREA“
“We’re proposing a new design for Queen’s Crescent…“
Camden Council have been consulting since 2016 about the changes they think are necessary to “transform” Queen’s Crescent.
Camden say that they are intent on spending a large amount of money on improving air quality and traffic safety, laudable objectives for sure, but many suspect also motivated by the desire to gentrify the area to make it more palatable to the market for new private homes planned to be built on nearby social housing estates.

The text on the designer’s website is telling in this respect.

Market traders don’t think that the gates are ‘symbolic’- when they are accidentally left open there is havoc. And to say that ‘residents and traders were wary’ is not correct- they still are. Frivolity is not something that people have asked for- they have asked serious questions about youth violence, market facilities and work opportunities.
Queen’s Crescent is being traduced by council members and officers, who routinely emphasise what they think should be seen as faults. This is not an open and honest way to work with local people.

There is a tendency to over-pathologize Queen’s Crescent, and not acknowledge the energy and opportunity that is a characteristic of the place. Most officers and consultants pass through with little understanding of how Queen’s Crescent works.
It is helpful to look at the past if you want to understand Queen’s Crescent. Much is made of the Victorian heyday of Queen’s Crescent, when J. Sainsbury made it the base of his growing grocery business. It then passes into a period of obscurity. In the 1950’s shops were still boarded up following war damage.


The Council made a major intervention in 1966 when it planned to demolish all the Victorian streets around Queen’s Crescent, on the grounds that the existing houses could not be refurbished to an acceptable standard. See here. The chief planning officer said at the time:
” We need your help to ensure that the new Gospel Oak is safer and pleasanter place in which to live”.
The exact same words are used 55 years later to justify more unnecessary demolition programmes and alterations to Queen Crescent.


It was considerate of the Council to leave the two pubs on the north side of Queens Crescent- which could easily have been knocked down- the Dreghorn Castle and Mamelon Tower. The street also benefited from the new library, sheltered housing and community centre. When the Council tried to reduce library opening hours to three days a week in 1999 there was revolt.

By 1996 the street was beginning to show signs of wear and tear and the Council made funding applications for money to spruce it up:


Extracts from Camden’s bid for funding, 1996
The Council obtained £1m funding in 1997, which enabled the installation of the steel arch leading into the street from Malden Road, a WC on the corner, electricity bollards for market traders and new street lights. The works were still going on in 2005 when the Council employed landscape architects to provide new hard landscaping between Queen’s Crescent and Gospel Oak 7&8 estate to the north, which was called the ‘Queen’s Crescent Gateway’ in recognition of the importance of the connection. However, the significant improvements set out in the bid document were not realised- the beneficial effect of the investment was more modest than envisaged and not long lasting.

Around this time the streets to the south of Queen’s Crescent were designated as part of West Kentish Town Conservation area, due to the heritage value of the houses the Council had wanted to pull down a mere 40 year previously. The proximity of the conservation area will hopefully help protect Queen’s Crescent from some of the proposals currently being illustrated.

The new trees look lovely- let’s hope they wont be pollarded. The new street lights are less convincing. The expensive ‘victorian-style’ lights put in 20 years ago are more in tune with people’s idea of the heritage of Queen’s Crescent, although not enough of the them were installed to provide sufficient lighting levels. Surely the answer is to add more to match, not rip them out.

There is a waste of materials, money and carbon emissions resulting from continuous changes to the highway in Queen’s Crescent. Less than 20 years after the ‘Queen’s Crescent Gateway’ was built with tax-payers’ money this area is now being changed again. If Queen’s Crescent is to be an exemplar environmental project it needs to embrace the circular economy and re-use existing elements such as street lights, granite kerbs, bollards and steel gates.


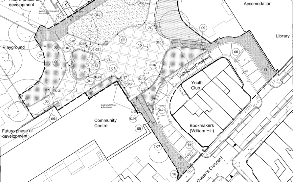
Proposals for traffic restricted area and more alterations to the ‘Queen’s Crescent Gateway’
Ultimately the solution to Queen’s Crescent’s problems cannot be reached by installing fancy new street furniture and painting squiggles on the road, or even by banning cars from part of the street. Camden should realise this as what it is proposing is much the same as was done 20 years ago, based on the same objectives, which had little effect. What were the ‘lessons learnt’ from that £1m expenditure of tax-payers’ money? It needs proper work to understand and nurture the economic life of the area, and implementation of long term economic and social policies along with the physical infrastructure to support it. Unfortunately we see none of this, but rather another frivolous makeover. What is particularly lacking is any attempt to link Queen’s Crescent with the wider neighbourhood, for example by developing the link down Queen’s Crescent to Chalk Farm.